COWEMA

STUDIO

Cowema Studio

/

projects

/

ag house - Modern Tropical House with Passive Design Approach

AG House

AG HOUSE

Layout

Scope

Architecture + Interior Design

Type

Single Dwellings, Residential Estate

Location

Pantai Indah Kapuk, North Jakarta

Area Size

400 sqm

Building Size

650 sqm

Design Style

Modern Tropical

Status

Completed

Year

2026

Interior

Cowema Studio

Contractor

Pak Munadi

Supported by

Laflo Furnishing, & Abode Style

Team

PAK WELLY 2

Welly Retyo Kusumo

Principal Architect

DANDI

Krisdandi Arya B.

Architect

SARAH 2

Sarah Amanda​

previous Architect

THEO 2

Theo Santho Bayu Aji​

Senior Interior Designer

NIA 2

Rayssa Tsania

Product Designer

INDA 2

Inda Nurjamilah

Senior TEChnical

DEBI 2

Gunawan Debi​

TECHNICAL

AJUN 2

Arjun Prasetya

PREVIOUS TECHNICAL

SANI

Muhammad Masykur I. A.

PHOTOGRAPHER

REGA

Rega Febriansyah

PHOTOGRAPHER

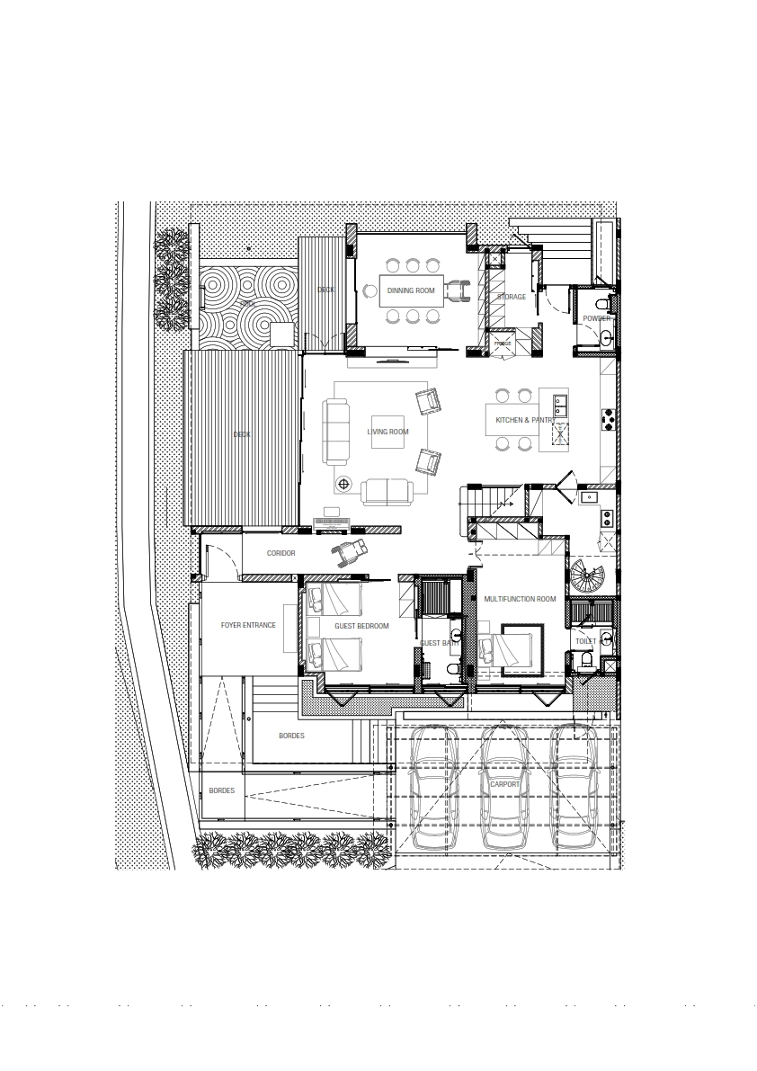
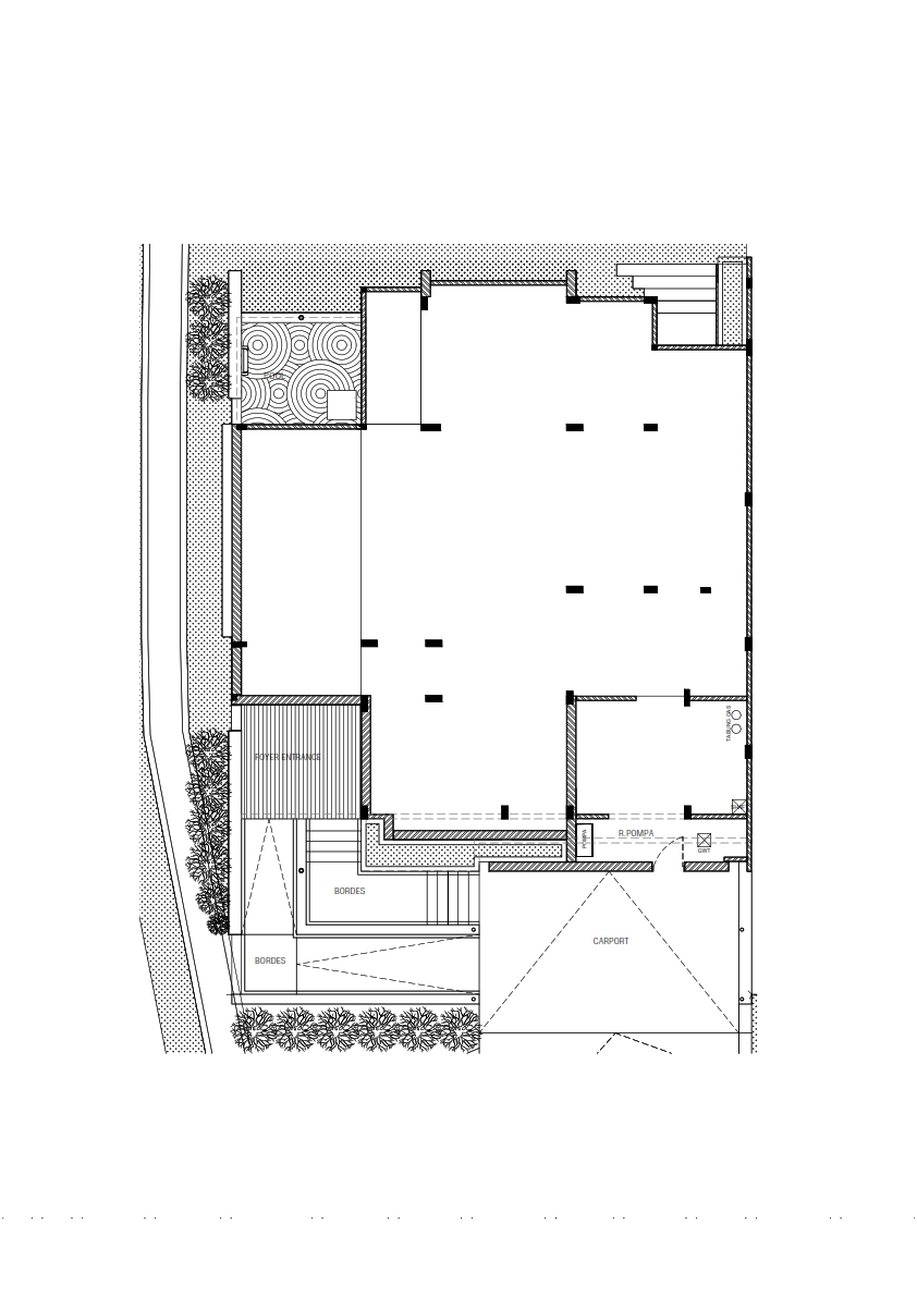
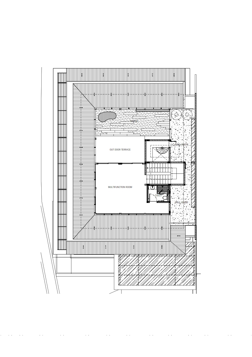
Modern Tropical House with Passive Design Approach

The AG House is envisioned as a Modern Tropical House that embraces a passive design approach, where architecture responds thoughtfully to climate, context, and lifestyle. Located in Pantai Indah Kapuk, North Jakarta, this two-story residence reflects a balance between contemporary aesthetics and environmental sensitivity, creating a home that is both elegant and efficient.

As a passive design-oriented project, the house is carefully oriented to optimize natural light while minimizing excessive heat gain. The facade integrates horizontal wooden elements that function as sun shading devices, reducing direct solar exposure while allowing soft daylight to filter into the interiors. This strategy not only enhances visual comfort but also reduces dependency on artificial cooling and lighting.

Natural ventilation plays a key role in maintaining thermal comfort throughout the house. Openings are positioned to enable cross ventilation, allowing air to flow freely between spaces and helping regulate indoor temperatures in a tropical climate. Large glass panels further strengthen the connection between indoor and outdoor environments, while ensuring that daylight penetrates deep into the living areas.

Material selection is equally intentional. The use of natural materials such as wood contributes to a warm and organic atmosphere, while also supporting thermal performance. These materials help absorb and release heat gradually, creating a more stable indoor environment throughout the day. The combination of glass and wood establishes a harmonious relationship between modern design and tropical sensibility.

The spatial layout adopts an open-plan concept, connecting the living room, dining area, and kitchen into a continuous, flexible space. This configuration not only enhances spatial efficiency but also improves airflow and natural lighting distribution. The living area is designed to face the garden, reinforcing the visual and physical connection to nature while providing a calming and comfortable ambiance.

Externally, the house is framed by a well-maintained landscape that complements its clean architectural language. The greenery acts as a natural cooling element, reducing heat reflection and improving microclimate conditions around the building.

Through the integration of passive design principles—such as optimal orientation, natural ventilation, material efficiency, and shading strategies—the AG House demonstrates how a Modern Tropical House can achieve up to significant energy savings while enhancing everyday comfort. The result is a home that is not only visually refined, but also sustainable, responsive, and deeply connected to its environment.

Other Project

Bold Tropical House with Clean Lines and Timeless Simplicity

NF House

Wood Elements With Monochromatic Colors

JG House

A MODERN MARVEL AMIDST TROPICAL SPLENDOR

DD House

Tropical Air Circulation And Local Material

The Hollow

PIK, North Jakarta

AP House

AM House - Backyard Pool
White Is A Timeless Color That Never Goes Out Of Style​

AM House